コンテンツへ移動

株式会社富仁八(フジンヤ)

【公式】Webサイト 沖縄県北部で不動産・イベント企画のことなら

  • ホーム
    Home
  • お知らせ
    Information
  • イベント
    Event
  • 実績紹介
    Works
  • 会社概要・役員紹介
    About us
  • お問い合わせ
    Contact us
  • Facebook
  • Instagram
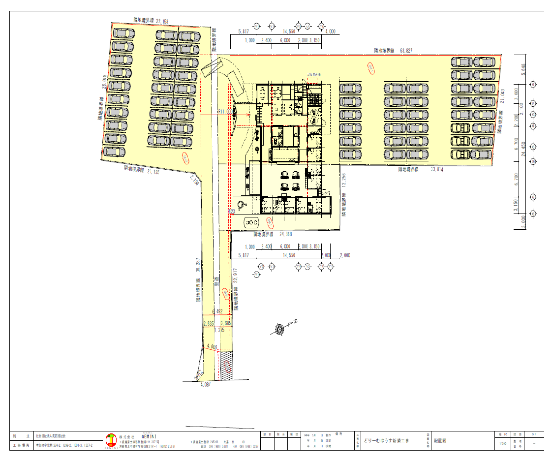
Categories 不動産企画実績紹介

小規模多機能施設新築工事(建設中)

企画・土地所有者:株式会社富仁八
設計・施工:株式会社GEMINI
施主:社会福祉法人 真正福祉会
完成予定:2026年 5月

Posted on 2026-02-092026-02-11 Author 株式会社富仁八(フジンヤ)

投稿ナビゲーション

前 前の投稿: 子供達とのレコーディング企画が琉球新報に掲載されました
次 次の投稿: フジンヤ社名由来

沖縄県北部で不動産・イベント企画のことなら、株式会社富仁八 (株式会社フジンヤ) にお任せください。お見積りのご依頼はもちろん、事前のご相談も承ります。お気軽にお問い合わせください。

株式会社富仁八(フジンヤ)
株式会社富仁八 (フジンヤ)
  • addr: 905-0212 沖縄県本部町字大浜855-1ミドリヤビル2F
  • 営業時間: 平日10:00~16:00、土日祝祭日・年末年始休業日を除く
  • email: Javascriptを有効にして下さい

[会社概要] | [お問合せフォーム] | [Privacy Policy]

  • Facebook
  • Instagram

Copyright © 2025 FUJiNYA Co., Ltd. All Right Reserved.